Retzenwinklerstraße 23
4407 Steyr

Baumeister

Hebenstreit

Vermessung und Planung – präzise und persönlich!

Das Unternehmen Häuser
Ing. Markus Hebenstreit

Ihr verlässlicher Baupartner

3D Planung

Nivellierung, Grundlagenermittlung, Einreichplan, Baubeschreibung, Bauansuchen – eines nach dem andren! Zuerst steht die Entwicklung eines Konzepts am Plan…[…]

Mehr erfahren

3D Bestandsaufnahme

3D-Technologie machts möglich: exakte Vermessung und Bestandsaufnahme bestehender Baustruktur bzw. eine minutiöse Berechnung entstehender Projekte. […]

Mehr erfahren

Häuser

Die Linie Bungalow Ambiente bietet Wohnfreiheit auf einer Ebene: Moderne, offene Grundrisse sowie Blick und Zugang zum Garten aus jedem Zimmer. […]

Mehr erfahren
– Über uns

Ihr Baumeister Hebenstreit

Das Einzelunternehmen Ing. Markus Hebenstreit ist ein regional tätiges Bauunternehmen mit Sitz in Kronstorf.

Als Baumeister führt Ing. Markus Hebenstreit die Entwurfsplanung, 3D-Scanning und Bestandsaufnahme für Ihr Bauprojekt aus.

Leistungen

3D Planung

Entwurfsplanung

3D Bestandsaufnahme

Einreichplan

Energieausweis

Einreichplan

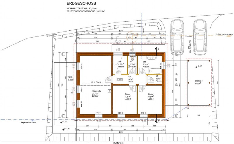
Der Einreichplan ist die Grundlage eines Bauvorhabens. Nach dem Entwerfen des neuen Objekts, das genau Ihren Vorstellungen entspricht, wird mit professioneller Planungs-Software ein genauer Einreichplan erstellt. Daraufhin steht ein behördliches Genehmigungsverfahren an. Die Abwicklung desselben wird von der Baumeister Hebenstreit GmbH gänzlich übernommen!

Der Weg zum Einreichplan

Zuerst steht die Entwicklung eines Konzeptes am Plan, im weiteren Verlauf erstellen wir einen Entwurf des Bauvorhabens.

Zum Schluss entsteht der Einreichplan

Sie brauchen aber auch hier keine mühsamen Behördengänge übernehmen, denn die Abwicklung des Genehmigungsverfahrens wird von mir durchgeführt. Folgende Schritte sind dabei notwendig:

  • Nivellierung
  • Grundlagenermittlung
  • Einreichplan
  • Baubeschreibung
  • Bauansuchen

Energieausweis

Ein Energieausweis ist gesetzlich in mehreren Baugesetzen verankert und gilt maximal zehn Jahre. Als Ihr Baumeister kümmert sich Markus Hebenstreit um die Ermittlung der benötigten Daten, sprich: Energiekennzahlen, Heizenergieverbrauch und alles weiter Notwendige, um die vorgeschriebenen Werte bestimmen zu können.

Die Erstellung und alle Formalitäten rund um Ihren Energieausweis werden dabei abgedeckt. Sie haben keinerlei Aufwand oder Behördenwege auf sich zu nehmen, denn diese Leistungen sind für uns selbstverständlich:

  • Besichtigung des Bestandsgebäudes
  • Ermittlung der notwendigen Daten
  • Anfahrt/Abfahrt
  • Erstellen des Energieausweises
  • Energieausweis in 2-facher Ausfertigung
  • Förderungsberatung

Wann ist ein Energieausweis notwendig?

  • aut Baugesetz bei Neubau, Zubau, Umbau oder umfassender Sanierung eines Gebäudes
  • aut Energieausweisvorlagegesetz bei Verkauf, Vermietung Verpachtung eines Gebäudes
  • bei Gebäuden für größere Menschenansammlungen (Größe von über 1.000m²)